How can a busy alley be an introvert's retreat?

S Street Alley Residence

Let light in, screen the world out

Washington, DC

2,940 SQFT

COMPLETED UNBUILT

Project Gallery

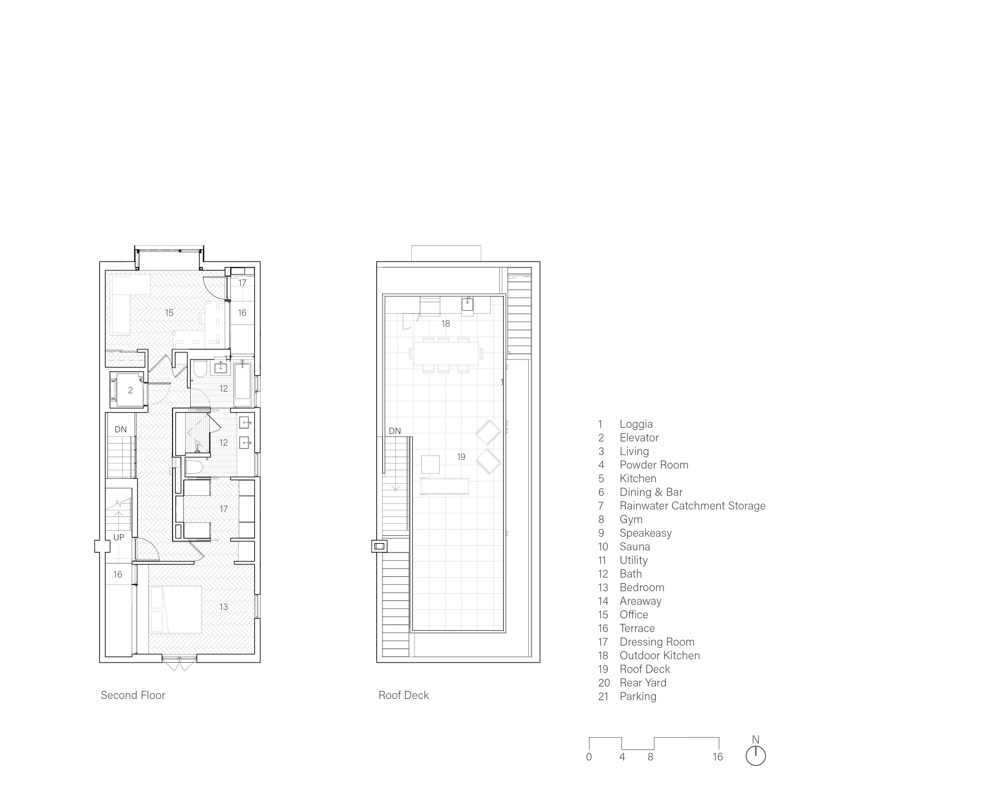
This renovation transforms a historic horse stable, located in a bustling alley off the 14th Street commercial corridor in central Washington, DC, into a residential retreat.

The client is a self-described introvert – a single woman who works and teaches in the tech industry remotely from her home.

Plagued by the noise, aromas, and activity from utility vehicles and alley wanderers, the client sought a design solution that would shield her from these external disturbances while reworking the stable interiors as a peaceful and private place to live and work.

The overarching design strategy introduces five “voids” to recalibrate the relationship between the interior and the alley environment.

These voids — four created by carving into the existing structure and one through a new addition — allow the client to engage with organic conditions but screen the chaos of alley activity out.

On the ground floor, two voids carve into the building to create a secluded entry and living spaces.

Panels of folded and perforated metal shield these loggia spaces from the alley, ensuring privacy while maintaining a subtle connection to the surrounding urban landscape.

Upstairs, two voids open to the sky create private terraces for sleeping and bathing spaces.

A new addition—a bay window on the upper level—establishes a direct visual connection from the home’s core to a flowering cherry tree in the rear yard, serving as a calming focal point and a natural counterbalance to the industrial setting.

Through the insertion of these five voids, the carriage house becomes a tranquil refuge in the heart of a bustling city.