Can an alley be a community center?

LeDroit Senior & Kelly Miller Houses Alley Enhancement

If you turn it inside-out.

Washington, DC

COMPLETED Ongoing

Awards

AIA DC 2023 Unbuilt Award, Professionally Commissioned Project

AIA DC 2025 Design Award, Master Planning/ Urban Design

Project Gallery

The LeDroit/Kelly Miller Alley Enhancement is a partnership with the DC Housing Authority. Developed through a series of community engagements, the design introduces new programming into the alley connecting several DCHA properties, turning a ‘back door’ corridor into an activity-rich amenity space.

These physical improvements provide opportunities for recreation, economic empowerment and enhanced connectivity to the surrounding homes and green spaces.

The Alley presents a unique opportunity to provide an amenity space for the community and improve safety and security for the residents.

Door-to-door canvasing and online survey responses painted a picture of who currently lives around the alleyway, and how they feel about it. The responses also helped the EL Studio team make decisions about proposed interventions and new programs.

In order to improve the alley we had to first start by understanding its history.

Not only is understanding the history of the alley itself important, but it's also crucial to understand the history of the residents that have lived there and how changes have impacted them.

The proposed alley enhancements are the result of a community-driven design process. At an on-site design workshop, the residents of LeDroit/Kelly Miller developed model alleys with programing that best fit their needs. Four models were set out with an assortment of fabrics, colored papers, strings and other craft materials. Residents used these materials to relay a story about how their neighborhood could function better.

Four models were set out with an assortment of fabrics, colored papers, strings and other craft materials. Residents used these materials to relay a story about how their neighborhood could function better.

The EL Studio team took the models from the community engagement exercise and distilled the proposals into the final design.

Chicanes, speedbumps and a speed table work in tandem to reduce driving speeds. The introduction of curb-edged sidewalks makes safe zones for pedestrians and two-wheeled vehicles. A designated one-way east-west traffic pattern reduces the volume of cars. The length of straightaways is reduced, making it difficult for drivers to get to top speed.

Alley Hops are just one of the many ways we engaged with the community!

New small pavilions including a Carport/Pop-up Market at the west end, Party Pavilion at the center and Makerspace at the east end, create a series of activities. Murals throughout the space add visual interest and an opportunity to tell the community’s stories.

An existing retaining wall topped with spiked cast-iron fencing is transformed into a seat wall, fostering informal chats.

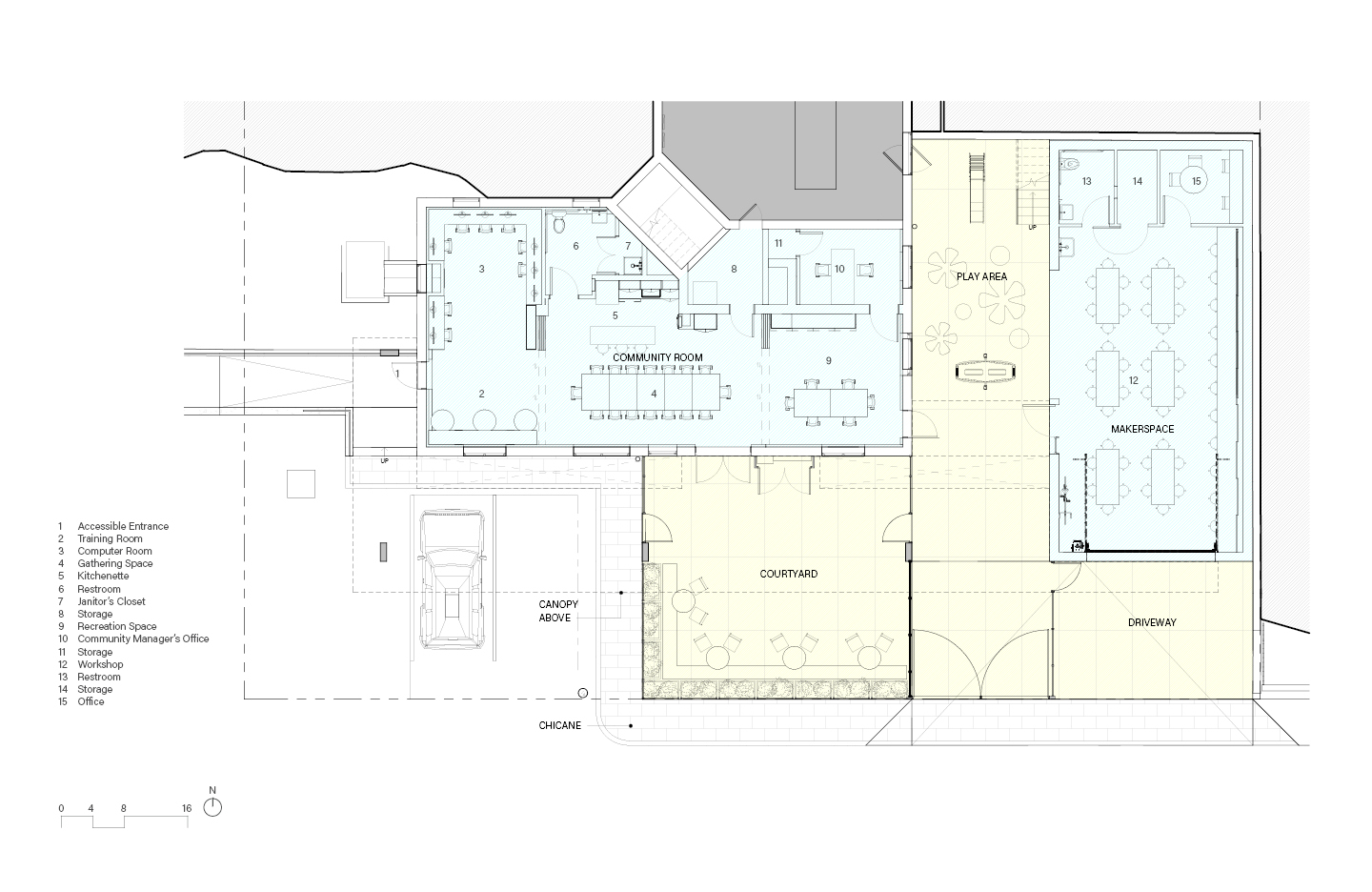
The Community Room and Makerspace respond to one of the three needs determined through a series of community engagements: amenities.

The two spaces are connected at ground level by an outdoor play and gathering area, and at ceiling level a shared awning. This design provides shade and shelter from the elements while offering privacy to the apartments above.

The Makerspace offers hands-on learning and creative opportunities. This dynamic workshop supports training and certification programs, bike repair, podcasting, and more, empowering residents with tools for skill-building.

The Community Room transforms an underutilized space within Building KM11 into a flexible multipurpose venue. Designed to accommodate a wide range of activities from computer and technology classes to the annual Thanksgiving celebration, the Community Room serves as a vital gathering space for residents of all ages.