How Do You Turn A Hayloft Into a Modern Loft?

Chapman Stables Loft

Reimagine History with Smart, Space-Saving Design.

Washington, DC

300 SQFT

COMPLETED 2025

Project Gallery

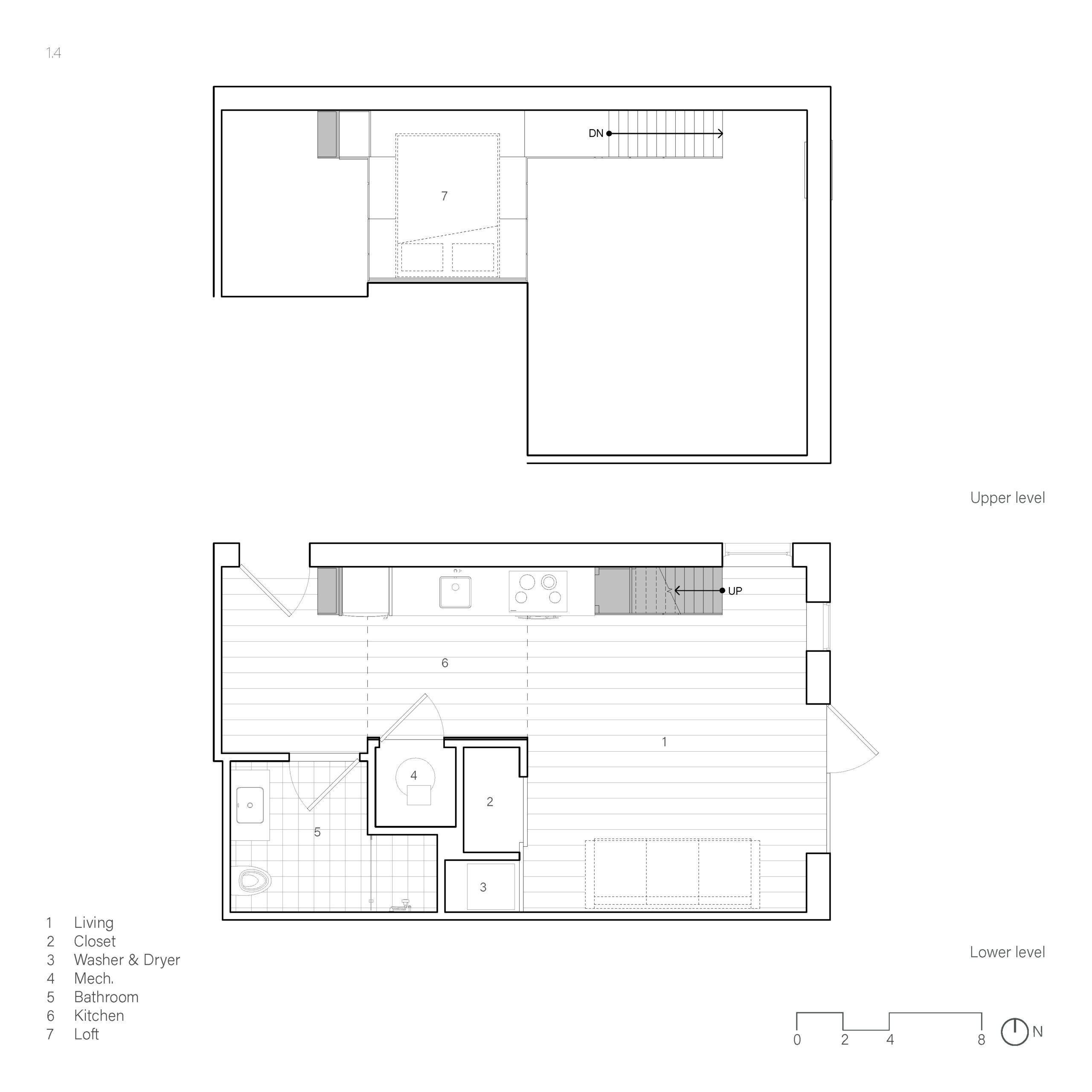
The project called for the design of a lofted space tailored to the needs of a young professional, incorporating a queen bed and integrated storage to a studio apartment in the historic Chapman Stables building.

The new loft is thoughtfully positioned above the kitchen, blending in ventilation and carving out a distinct living area and compact, elevated bedroom.

Below, storage columns organize household items while structurally supporting the kitchen and living spaces.

With its exceptionally high ceilings—originally designed to accommodate a hayloft mezzanine for feeding horses—the space offered a unique opportunity for vertical transformation.

One column is topped with a custom stair-ladder, cleverly maximizing functionality and providing access to the loft above.

In addition to its practical role, the loft serves as a soft light fixture, casting a warm glow across the space.

To create a cohesive and modern interior suited to the client’s lifestyle, the kitchen cabinetry was refaced, seamlessly tying the historic character to contemporary living.